Centrale pe lemne – încălzire economică, fiabilă și tradițională pentru locuințe și afaceri
Centrale pe lemne – încălzire economică, fiabilă și tradițională pentru locuințe și afaceri
Încălzirea cu lemne rămâne una dintre cele mai stabile și justificate economic soluții pentru gospodării. În perioadele cu prețuri fluctuante la energie și incertitudine pe piață, mulți proprietari de locuințe și de proprietăți mai mari caută un sistem fiabil care să ofere putere mare, costuri previzibile și funcționare pe termen lung. Tocmai de aceea Centralele pe lemne continuă să ocupe un loc important printre soluțiile preferate de încălzire.
Acest tip de încălzire se caracterizează prin eficiență ridicată atunci când puterea este aleasă corect și instalația este proiectată corespunzător. Un avantaj suplimentar este disponibilitatea lemnului de foc în multe regiuni, ceea ce face costurile de operare mai ușor de planificat. Cu o întreținere bună și utilizare corectă, o centrală pe lemne poate asigura încălzire stabilă timp de mulți ani, fără a necesita automatizări complexe sau infrastructură costisitoare.
.png)
Ce este o centrală pe lemne
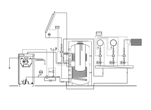
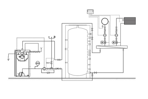
O centrală pe lemne este un echipament de încălzire pentru un sistem de încălzire centrală care utilizează combustibil solid (lemn de foc) pentru a încălzi apa. Apa încălzită circulă printr-un sistem de țevi către radiatoare sau către încălzirea prin pardoseală, asigurând o temperatură uniformă în întreaga clădire.
Spre deosebire de sobele sau șemineele obișnuite, centrala este proiectată să încălzească o casă sau o clădire întreagă, nu doar o singură cameră. Aceasta funcționează ca sursă principală de căldură și poate fi combinată cu un puffer pentru o eficiență mai mare și încărcări mai rare cu combustibil. În funcție de model și construcție, centralele pot oferi diferite niveluri de eficiență și control al arderii. Soluțiile moderne sunt concepute pentru a optimiza arderea lemnului și pentru a reduce pierderile de căldură, fiind potrivite atât pentru clădiri noi, cât și pentru modernizarea instalațiilor existente.

Cum funcționează o centrală pe lemne
Procesul de funcționare al centralelor pe lemne se bazează pe arderea combustibilului solid și transferul căldurii generate către o manta de apă (schimbător de căldură). După aprinderea lemnului de foc, se produce căldură care este utilizată pentru a încălzi apa din interiorul centralei. O pompă de circulație distribuie apa caldă către sistemul de încălzire, după care apa răcită revine în centrală pentru a fi reîncălzită.
Modelele moderne pot fi împărțite în câteva tipuri principale:
- Centrale standard cu tiraj natural
- Centrale cu ventilator pentru tiraj forțat
- Centrale cu gazeificare (piroliză) cu eficiență mai mare
Centralele cu piroliză asigură o ardere mai completă a gazelor din lemn, ceea ce duce la un consum mai redus de combustibil și emisii mai mici.


Aplicații potrivite pentru centrale pe lemne
Centralele pe lemne sunt potrivite pentru proprietăți echipate cu un sistem de încălzire pe bază de apă. Cel mai frecvent sunt utilizate în:
- Case unifamiliale
- Vile și proprietăți rurale
- Clădiri mici de apartamente
- Ateliere și depozite
- Hale industriale
- Clădiri publice în zone fără rețea de gaz
Acestea sunt deosebit de eficiente în regiunile unde lemnul de foc este ușor de găsit și accesibil ca preț.
Cum să alegi puterea potrivită
Alegerea puterii corecte este unul dintre cei mai importanți factori atunci când achiziționezi o centrală. O putere insuficientă nu va oferi confortul dorit, iar o putere prea mare va duce la funcționare ineficientă și consum inutil de combustibil.
La determinarea puterii necesare se iau în considerare următorii factori:
- Suprafața totală a locuinței
- Înălțimea tavanelor
- Izolația termică
- Tipul ferestrelor și ușilor
- Zona climatică
Ca regulă generală, 1 kW de putere poate încălzi aproximativ 10 m² într-o locuință bine izolată și cu înălțime standard a tavanului. De exemplu, pentru o casă de 150 m², se recomandă de obicei o centrală cu o putere între 15 și 20 kW.
Principalele avantaje ale centralelor pe lemne
Centralele pe lemne sunt preferate datorită mai multor avantaje importante. Acestea oferă încălzire economică și o durată lungă de viață, mai ales atunci când sunt fabricate din oțel de înaltă calitate.
Principalele beneficii includ:
- Cost redus al combustibilului
- Capacitate mare de încălzire
- Potrivite pentru suprafețe mari
- Independență relativă față de furnizorii de energie
- Investiție inițială mai mică comparativ cu sisteme automatizate precum Centrale pe Peleti sau Seturi Peleti
Dezavantaje de luat în considerare
În ciuda avantajelor lor, centralele pe lemne necesită mai multă implicare din partea utilizatorului. Acestea nu sunt complet automatizate și necesită întreținere regulată.
Principalele dezavantaje includ:
- Încărcare manuală a combustibilului
- Necesitatea unui spațiu pentru depozitarea lemnelor
- Curățarea periodică a cenușii
- Nivel de confort mai scăzut comparativ cu sistemele pe peleți, cum ar fi Termoseminee Peleti
Diferența dintre centralele pe lemne și centralele pe peleți
Centrale pe Peleti reprezintă o alternativă modernă la sistemele tradiționale de Centrale pe lemne. Principala diferență constă în nivelul de automatizare și în modul de alimentare cu combustibil.
O centrală pe lemne se încarcă manual și necesită monitorizare regulată. Investiția inițială este de obicei mai mică, iar combustibilul este adesea mai ieftin și mai ușor de găsit.
O centrală pe peleți dispune de alimentare automată cu combustibil, control electronic și moduri de funcționare programabile. Acest lucru oferă un confort mai ridicat și un control mai precis al temperaturii, însă investiția inițială este mai mare.
Alegerea între cele două opțiuni depinde de buget, de nivelul de automatizare dorit și de disponibilitatea combustibilului în regiunea respectivă.
Diferența dintre o centrală pe lemne și un termosemineu pe peleți
Un Termosemineu Peleti poate fi conectat la un sistem de încălzire, însă de obicei are o putere mai mică și combină funcția de încălzire cu cea decorativă.
O Centrale pe lemne este proiectată în principal pentru încălzirea continuă și eficientă a unei clădiri întregi, oferind putere mai mare și eficiență mai bună în funcționarea pe termen lung.
Ce trebuie verificat înainte de achiziție
Înainte de a lua decizia finală, este important să acordați atenție specificațiilor tehnice și calității construcției.
Principalii parametri de luat în considerare includ:
- Puterea nominală (kW)
- Randamentul (eficiența termică)
- Grosimea oțelului
- Tipul camerei de ardere
- Prezența unui ventilator
- Compatibilitatea cu un puffer (rezervor de acumulare)
- Condițiile de garanție și suportul service
Ce tip de lemn de foc este cel mai potrivit
Eficiența unei centrale pe lemne depinde nu doar de model, ci și de calitatea combustibilului utilizat. Cele mai bune rezultate se obțin cu esențe tari și lemn bine uscat, precum:
- Stejar
- Fag
- Carpen
Umiditatea lemnului de foc ar trebui să fie sub 20%, deoarece lemnul umed reduce eficiența și crește depunerile de funingine.

Întrebări frecvente (FAQ)
Cât de des trebuie încărcată o centrală pe lemne?
De obicei, alimentarea este necesară la fiecare 3 până la 6 ore, în funcție de puterea centralei, temperaturile exterioare și nivelul de izolație al clădirii.
Poate funcționa o centrală pe lemne fără electricitate?
Unele modele cu circulație naturală pot funcționa fără electricitate, însă majoritatea sistemelor utilizează o pompă de circulație și necesită alimentare electrică.
Este necesar un coș de fum special?
Da, un coș de fum dimensionat corect este esențial pentru un tiraj bun și pentru funcționarea sigură a sistemului.
Care este durata de viață a unei centrale?
Cu o întreținere corespunzătoare, o centrală poate funcționa între 10 și 20 de ani.
Cât lemn de foc este necesar pentru un sezon de încălzire?
În medie, o casă de 120–150 m² necesită între 8 și 15 metri cubi de lemn de foc, în funcție de calitatea izolației și condițiile climatice.
Centralele pe lemne rămân o soluție practică și economică pentru încălzire, în special în zonele fără infrastructură de gaz. Acestea oferă putere mare și costuri de operare relativ reduse, dar necesită mai multă implicare din partea utilizatorului.
Alegerea corectă depinde de dimensiunea proprietății, bugetul disponibil și nivelul de confort dorit. Atunci când este aleasă corect și instalată profesional, o centrală pe lemne poate asigura încălzire fiabilă timp de mulți ani.
Vezi și:



